Safety Interlock Pro
Getting Started
The Safety Interlock Pro is an extra layer of safety to critical effects. Integrating bumper switches, pressure mats, and additional limit switches into any system gives a secondary layer of protection for areas with potential pinch points, like an elevator or pivoting wall. The Safety Interlock is wired between the machinery and the Stagehand with simple, pluggable connections to interrupt either forward or reverse motion.
This manual will guide you through:
Unpacking
Installation
Powering up
Operation
Troubleshooting
If you need any help along the way, contact us on our website (creativeconners.com), via email ([email protected]), or by phone (401-289-2942).
What’s Included
In the box you will find:
Reference manual (this document)
Safety Interlock Pro
Two 3-pin XLR jumpers
Six limit jumpers
If any of these parts are missing, please contact us.
If you ordered any bumper switches or pressure mats those items are packaged separately.
Features
The Safety Interlock Pro is a 3U rack mountable device with 4 mounting holes. Listed below are additional features of the Interlock.
Three indicator lights to show the status of the Safety Interlock
Signal input from the Stagehand Pro
Signal output to the machine
Two ultimate limit outputs, two forward, and two reverse
Forward and reverse sensors (one input and output for each direction)
Emergency stop input and output
Installation
The Safety Interlock Pro is a 3U rack mountable case designed to fit in a standard 19” rack. It is not required to be rack mounted, feel free to place it on the operator desk or with the Stagehand Pro motion controllers.
A key point to note during installation is that the Safety Interlock Pro will need to be connected between the machine and the Stagehand.
Powering Up
After the Safety Interlock is installed, it is time to power it up and test that bumper switches, pressure mats, and/or limit switches are working correctly. The Safety Interlock Pro requires 24VDC from the showstopper circuit in order to receive power.
Signal Connections
The Stagehand controller sources 12VDC on a pin of each limit circuit and expects to see that 12VDC signal returned on the other pin when the limit is not activated. If the limit is activated, disconnected, or a wiring fault occurs, the 12VDC return signal is interrupted and the Stagehand Pro will enter a limit fault condition and disallow motion.
Adding a safety interlock pro to a Stagehand Pro allows additional limit switches and safety sensors to be monitored. These switches and sensors interrupt the forward, reverse, and ultimate limit circuits coming from the machine.
The limit switch inputs are used to protect against the motor traveling too far in a direction and causing damage or injury.
Limit Connections
The Stagehand Pro motion controller monitors forward, reverse, and ultimate limit circuits. The auxiliary limit connections place additional limit connections in series with those already connected to the Stagehand Pro.
Diving a little deeper into limit signals:
Ultimate Limit – a pair of switches can be wired in series to this pair of terminals to provide protection against Forward and Reverse Limit switch failures. Traditionally, these switches are wired Normally Closed (N.C.) but can different depending on the application. Typically, an Ultimate Limit switch is positioned just beyond both the Forward and Reverse Limit switch. If any Ultimate Limit is activated, the Stagehand will disallow any further movement until the limit is physically cleared. An Ultimate Limit signal indicates an equipment problem with at least one of the primary limit switches. The faulty equipment must be repaired, and the Ultimate Limit must be mechanically reset before the Stagehand will allow motion.
Reverse Limit – If any Reverse Limit switch is activated, the Stagehand will not allow further motion in the reverse direction until the limit is cleared either by adjusting the switch mechanically or by moving in the forward direction far enough to clear the limit switch. Traditionally, these switches are wired Normally Closed (N.C.) but can different depending on the application.
Forward Limit – If any Forward Limit switch is activated, the Stagehand will not allow further motion in the forward direction until the limit is cleared either by adjusting the switch mechanically or by moving in the reverse direction far enough to clear the limit switch. Traditionally, these switches are wired Normally Closed (N.C.) but can different depending on the application.
Sensor Connections
The safety interlock adds additional support for 4 wire safety circuits (e.g. bumper switches, pressure mats). A 4 wire safety circuit when used in conjunction with a safety relay allows monitoring for the following four conditions:
Disconnected - the safety relay sends out test pulses through the sensor and expects the signal to return. If that signal does not return the safety relay will go into a faulted state and disallow any further motion.
Shorted - if a wire has been crushed by equipment or cut the safety relay will go into a faulted state.
Cross Circuit - if the signals get crossed and the test pulse comes back on the opposite channel the safety relay will go into a faulted state.
Good - if none of the above conditions occur the safety relay will not prohibit any movement.
Emergency Stop Connections
The Safety Interlock Pro requires a 24VDC Emergency Stop signal from a Showstopper in order to allow power to flow to the motor and brakes. Internally, the Stagehand controller has a redundant, self-monitoring circuit to ensure that power will be removed from the motor and brakes instantly if the 24VDC Emergency Stop signal is interrupted. The 5-pin XLR cable is not a DMX signal, but rather it was chosen as a convenient cable that is prevalent in many venues so you should always be able to find a spare cable when needed.
Below is the pin-out for the Emergency Stop input:

Operation
Once powered up, the Safety Interlock Pro is operational. If all of the connections have been properly made, the entire system is powered up, and none of the sensors or limit switches are activated, the Safety Interlock Pro is actively doing its job. To verify this, the three indicator lights on the face should all be illuminated. Other than connecting or disconnecting any limit switches or sensors, there should be nothing else that needs to be done to the Safety Interlock itself.
Troubleshooting
When encountering an issue with the Safety Interlock Pro, the first thing to check would be that none of the limits or sensors are activated. If they are not, the next thing to check would be that all of the cables or jumpers are connected properly. If all connections are made properly and none of the sensors or limits are activated it would be best to make sure that none of the cables have been cut or damaged.
Common Problems
The issue that is most often encountered is leaving an open connection. All connections on the back of the interlock need to have a physical cable or a jumper plugged in. Making sure that either the cables or the jumpers are seated properly is also important. It is common to mix up the sensor input and outputs in the forward and reverse direction.
Condition
Remedy
No indicator lights illuminated
Check main power
Only Power and REV safety sensor indicators illuminated
Confirm no FWD limit is activated
Confirm no FWD sensors activated
Confirm they are plugged into correct direction
Only Power and FWD safety sensor indicators illuminated
Confirm no REV limit is activated
Confirm no REV sensors are activated
Confirm they are plugged into correct direction
Only Power indicator illuminated
Confirm no limit is activated FWD and REV
Confirm no sensor is activated FWD and REV
Confirm they are plugged in to correct corresponding direction
Technical Support
If you get stuck, we are here to help. The best way to get in touch with a tech expert is via email, even during normal business hours, because most days we are on the shop floor and may not be near the phone. There is someone in the office from 8:30a-5pm EST Monday-Friday, and they will return an email or phone call quickly. After hours, when most tech support issues arise, we have a crack team monitoring email and voicemail who will respond quickly to help get you moving.
Online: www.creativeconners.com
Email: [email protected]
Phone: 401-289-2942 x2
Specifications
Inputs for both Forward and Reverse safety sensors (bumper switches or pressure mats)
Pass through connections for Stagehand Limit Switch signals
Electrical Specifications
Emergency Stop Input
24VDC
Emergency Stop Output
24VDC
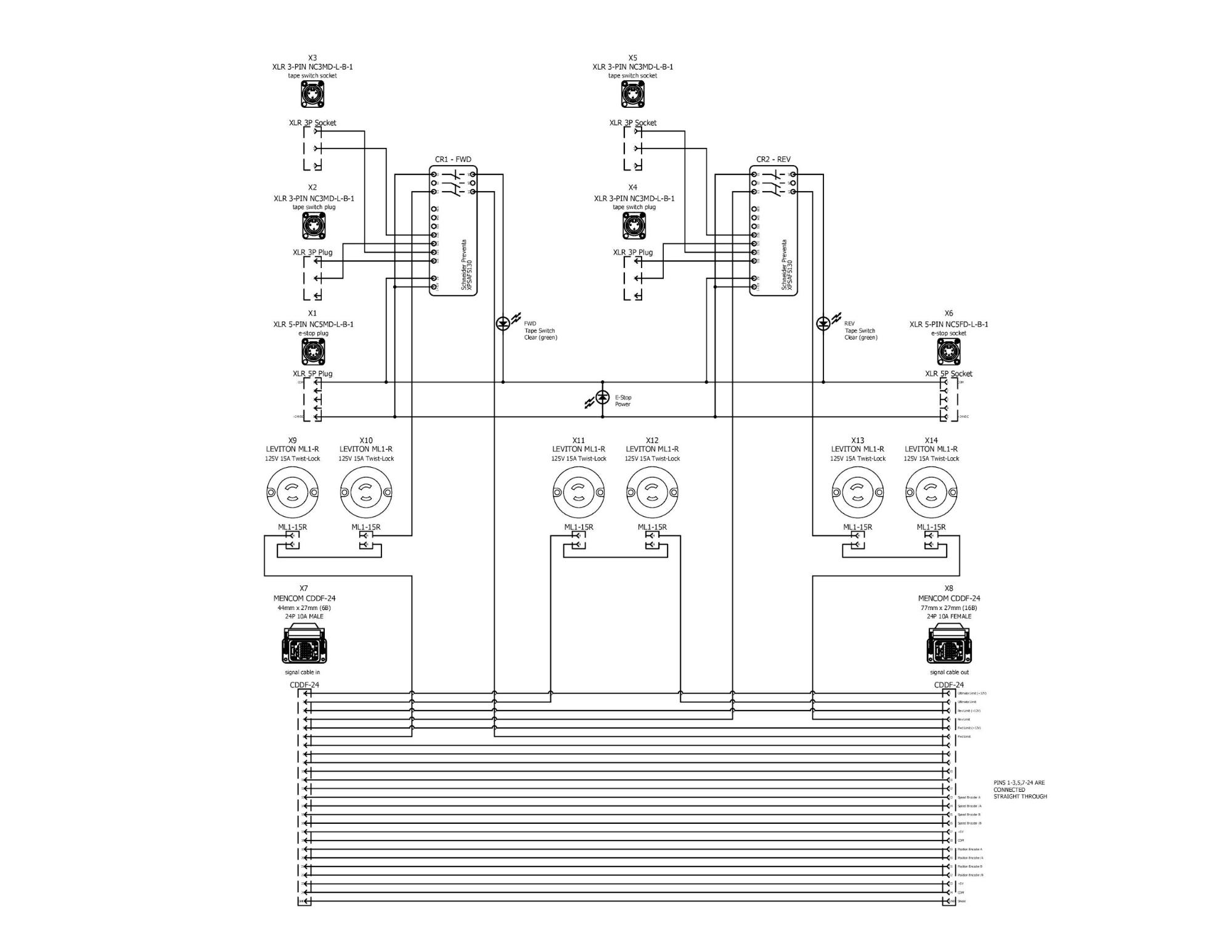
Electrical Schematic
Last updated
Was this helpful?