# Installation

## WALL MOUNTING <a href="#h.4wduus6r25ld" id="h.4wduus6r25ld"></a>

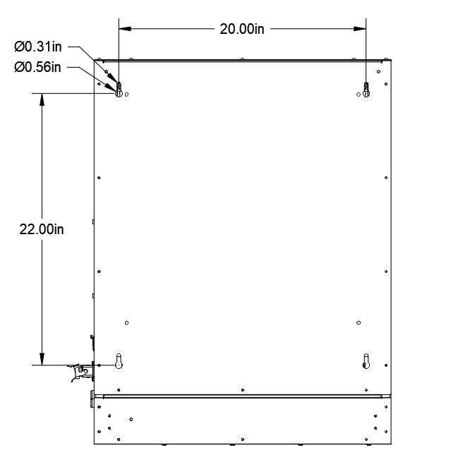
The Stage Manager is designed to be easily mounted to almost any wall. Ensure that your wall and fasteners are capable of securely supporting more than 80 pounds. Use the 4 mounting holes on the back of the Stage Manager to fasten the Stage Manager to your wall. Below is the hole pattern needed for mounting your Stage Manager

<figure><img src="/files/pizF2s8beDHwFAyvx8fR" alt=""><figcaption></figcaption></figure>

{% file src="/files/GPHhgeIXKZEb41zWySaC" %}

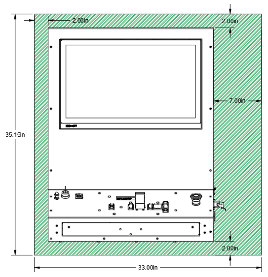
### CLEARANCES <a href="#h.2jgy81yg04ie" id="h.2jgy81yg04ie"></a>

Since the Stage Manager is designed to have the cable connections on the side of the enclosure, it is critical that you maintain clearance around the Stage Manager when choosing a mounting location. We recommend that you maintain at least 2” on the top, bottom, and left side of Stage Manager for ease of installation and maintain at least 7” of clearance on the right side of the Stage Manager to allow yourself room to connect your cables to the Stage Manager.

<figure><img src="/files/HayJX2a3g9NsRhJWrlZT" alt=""><figcaption></figcaption></figure>

### &#x20;<a href="#h.tnylck1zuurk" id="h.tnylck1zuurk"></a>


---

# Agent Instructions: Querying This Documentation

If you need additional information that is not directly available in this page, you can query the documentation dynamically by asking a question.

Perform an HTTP GET request on the current page URL with the `ask` query parameter:

```
GET https://docs.creativeconners.com/docs/showstopper/legacy/stage-manager/installation.md?ask=<question>
```

The question should be specific, self-contained, and written in natural language.
The response will contain a direct answer to the question and relevant excerpts and sources from the documentation.

Use this mechanism when the answer is not explicitly present in the current page, you need clarification or additional context, or you want to retrieve related documentation sections.
